Dear ALL,
I am going to construct a single bed room with car parking in Gnd floor, a three bed room house i n first floor and a 2bhk and 1 BHK in 2nd floor on a 30'x40' b khata plot in ITI Layout, west facing plot @ yellukunte near H S R L/O.
I have enclosed working drawing for each floor. Any suggestions on the same ?
Thanks
k s manjunatha
any suggestion on working plan
any suggestion on working plan
- Attachments
-
- FIRST FLOORrevd.pdf
- 3BHK FOR OWN USE
- (159.79 KiB) Downloaded 756 times
-
- GROUND FLOORrevd.pdf
- 1BHK+CARPARKING
- (162.9 KiB) Downloaded 785 times
- ardesarchitects
- Posts: 1080
- Joined: June 20th, 2009, 2:12 pm
Re: any suggestion on working plan
Hi Majuinath
Few observations from my perspective. I am truely considering functional aspects while commenting and kept vastu as secondary .
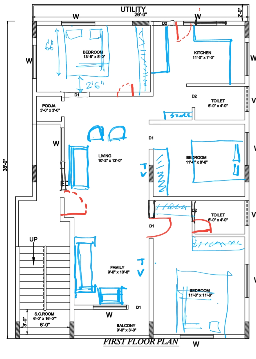
First floor :-
1. Utility wont work with 2' width , even if you install sink or washing machine needs minimum 4' width
2. NE bedroom door location is not space efficient , considering bed is kept on east wall and door opens opp the bed will not have space to open the door .
3. NE bedroom incase of bed on south wall no space for wardrobe.
4. Keeping uitlity door moved by 2' towards south will add additional space to keep refrigerator and counter space too
5. Master bedroom door position to be moved to west side to accommodate wardrobe
6. Main door to be moved to west for better living space
The same is sketched for ease of understading and attached .
Regards,
Ar.Praveen.N
Ardes Architects and Interior designers
ardesarchitects@gmail.com
www.ardesarchitects.com
https://www.instagram.com/ardesarchitects
Few observations from my perspective. I am truely considering functional aspects while commenting and kept vastu as secondary .
First floor :-
1. Utility wont work with 2' width , even if you install sink or washing machine needs minimum 4' width
2. NE bedroom door location is not space efficient , considering bed is kept on east wall and door opens opp the bed will not have space to open the door .
3. NE bedroom incase of bed on south wall no space for wardrobe.
4. Keeping uitlity door moved by 2' towards south will add additional space to keep refrigerator and counter space too
5. Master bedroom door position to be moved to west side to accommodate wardrobe
6. Main door to be moved to west for better living space
The same is sketched for ease of understading and attached .
Regards,
Ar.Praveen.N
Ardes Architects and Interior designers
ardesarchitects@gmail.com
www.ardesarchitects.com
https://www.instagram.com/ardesarchitects
Re: any suggestion on working plan
Dear Mr Praveen,
THanks for your valuable comments and sketch on first floor house.
What about gnd floor and 2nd floor houses- any valid comments on them.
These floor houses to be built for rent purpose and first floor is for own use.
What % of escalation we need to accomodate for corona effect on civil eng materials and labour cost ?
Thanks
manjunath k s
THanks for your valuable comments and sketch on first floor house.
What about gnd floor and 2nd floor houses- any valid comments on them.
These floor houses to be built for rent purpose and first floor is for own use.
What % of escalation we need to accomodate for corona effect on civil eng materials and labour cost ?
Thanks
manjunath k s
- ardesarchitects
- Posts: 1080
- Joined: June 20th, 2009, 2:12 pm
Re: any suggestion on working plan
Hi Manjunath
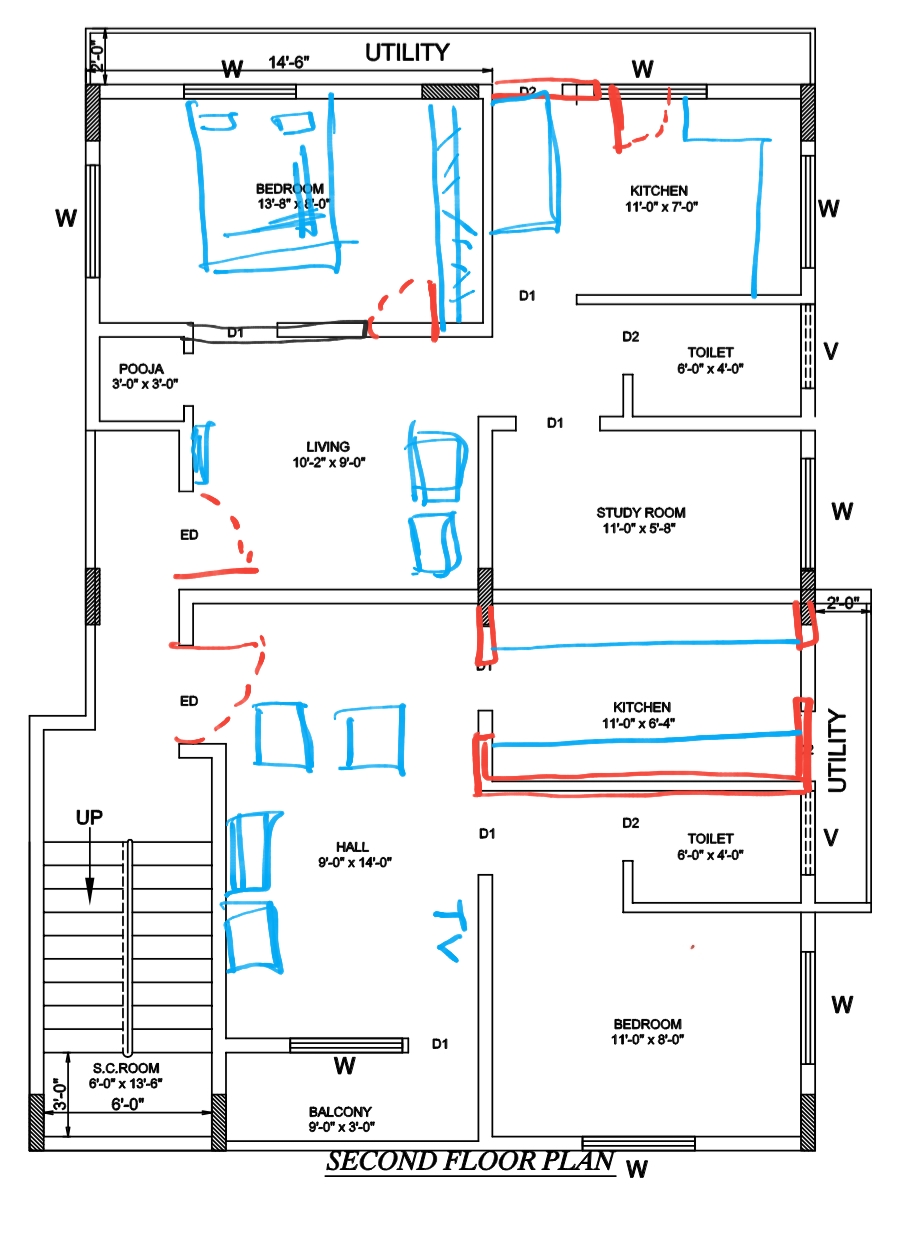
1. Ground & second floor most changes are same as first floor. Its typical & same grid plan, except hall is divided in to two parts.
2. Any floor plan while designing basic furniture should always be shown and only then window, door locations can be finalized
3. Just by room size one should not consider it is well placed or designed .
4. Its important to see what is out side to your bedroom, living, kitchen windows. You might be facing neighbour toilet vent next to bedroom if you go by vastu in most cases.
5. Your SW side will be NW for the neighbour and he has all liberty to place a toilet
.
6. While planning you need to look for internal & external factors too.
You should ask your architect to rework on the plan showing the entire furniture in actual sizes that you wanted to accomodate in your home.
Attached the image to show changes in the second floor.
All the best for your construction .
Regards,
Ar.Praveen.N
Ardes Architects and Interior designers
ardesarchitects@gmail.com
www.ardesarchitects.com
https://www.instagram.com/ardesarchitects
1. Ground & second floor most changes are same as first floor. Its typical & same grid plan, except hall is divided in to two parts.
2. Any floor plan while designing basic furniture should always be shown and only then window, door locations can be finalized
3. Just by room size one should not consider it is well placed or designed .
4. Its important to see what is out side to your bedroom, living, kitchen windows. You might be facing neighbour toilet vent next to bedroom if you go by vastu in most cases.
5. Your SW side will be NW for the neighbour and he has all liberty to place a toilet
6. While planning you need to look for internal & external factors too.
You should ask your architect to rework on the plan showing the entire furniture in actual sizes that you wanted to accomodate in your home.
Attached the image to show changes in the second floor.
All the best for your construction .
Regards,
Ar.Praveen.N
Ardes Architects and Interior designers
ardesarchitects@gmail.com
www.ardesarchitects.com
https://www.instagram.com/ardesarchitects