Please advise on my house plan

Post Reply
nitinku5021a
Posts: 17
Joined: November 28th, 2010, 11:21 pm

Please advise on my house plan

Post by nitinku5021a »

Dear All,

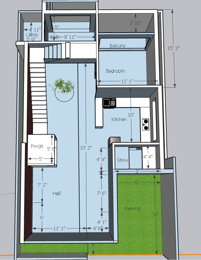
I have finalized a G+1 construction plan (duplex) on a 9m x 15m (~ 30ft x 50ft) site. Its East facing site and has 3 neighboring site (open) with Road on the East. Please suggest if any improvement you would like to advise. TIA.

PS* Attached is the 3D drawing of GF, FF and Roof with Elevation. (Roof file is next post...some error is coming)
Attachments
GF.jpeg
GF.jpeg (120.1 KiB) Viewed 7938 times
FF.jpeg
FF.jpeg (110.18 KiB) Viewed 7938 times
Elevation.jpeg
Elevation.jpeg (79.64 KiB) Viewed 7938 times
nitinku5021a
Posts: 17
Joined: November 28th, 2010, 11:21 pm

Re: Please advise on my house plan

Post by nitinku5021a »

The 3D sketch of Roof is as below:
Attachments
Roof.jpeg
Roof.jpeg (132.22 KiB) Viewed 7937 times
venkyn
Posts: 305
Joined: September 11th, 2010, 2:50 pm

Re: Please advise on my house plan

Post by venkyn »

It is a good one, you have good sense of light and air requirements. Have good skylight over the stairs and it will light the floor throughout the year.
User avatar
ardesarchitects
Posts: 1080
Joined: June 20th, 2009, 2:12 pm

Re: Please advise on my house plan

Post by ardesarchitects »

nitinku5021a wrote: May 9th, 2020, 8:53 am Dear All,

I have finalized a G+1 construction plan (duplex) on a 9m x 15m (~ 30ft x 50ft) site. Its East facing site and has 3 neighboring site (open) with Road on the East. Please suggest if any improvement you would like to advise. TIA.

PS* Attached is the 3D drawing of GF, FF and Roof with Elevation. (Roof file is next post...some error is coming)
Hi, Nitin
Few points from my side
1. Sky light can be considered more in presepective of lighting and less in ventilation
2. I see that the side setbacks are about 1'6" approx which is not completely dependable for ventilation
3. The internal stairs with sky light is a good option only when there is enough ventilation is taken care other wise it might become a hot chamber in summers.
4. The first floor has lot of movment areas than livable areas. Hall will be usuable to place furniture any where and the stair case to terrace may not work in current layout.
5. Living rom is not efficient to place furniture even though the size is bigger. Please check by placing the furniture like you did in bedroom.
6. Master bedroom / ff bedroom is not efficient by seperating closet and toilet unless its your traditional requirement.
7. FF bedroom size is very big and with easy chair, work station is option for bachelor style living. I would suggest increase the efficiency of the planning as lot more intersting usable spaces can be created with the existing built up area only.

All the best

Regards,
Ar.Praveen.N
Ardes Architects and Interior designers
ardesarchitects@gmail.com
www.ardesarchitects.com
https://www.instagram.com/ardesarchitects
nitinku5021a
Posts: 17
Joined: November 28th, 2010, 11:21 pm

Re: Please advise on my house plan

Post by nitinku5021a »

Thank you for the input. We have realized the space inefficiency and scope for lot of improvement. So now have given it to Architect. Thanks again.
Armchair_general
Posts: 71
Joined: November 6th, 2016, 9:38 am

Re: Please advise on my house plan

Post by Armchair_general »

1. Ask for walk in closets, will make the room very clean and organised.
2. I dont see bathrooms. Dont have attached bathrooms opening inside the room. It will make your room damp and smelly.
3. Too much of space wastage for your design.
4. The design is very lazy and is it as per Vaastu ?
Post Reply

Return to “Civil Construction”