Please review urgent-1100 sqfeet spacious house plan
- ardesarchitects
- Posts: 1080
- Joined: June 20th, 2009, 2:12 pm
Re: Please review urgent-1100 sqfeet spacious house plan
Hi Sharma
As per the dwg, the staircase wont work and the floor heights won't be sufficient . Ask your architect to get section done so the heights of each room are clear.
While going for split level planning you should be very careful about sectional heights including beam depths and slab thickness.
You cannot keep parking at zero level from road as the sump will have issues later. As per my understandings from your shared plan i have made a sectional dwg and the clear heights in small room is 5', dinning area 7' and parking 7'.
Giving living room 11' is not a problem but accordingly your number of steps should increase @ 6"-7" raiser height.
Regards,
Ar.Praveen.N
Ardes Architects and Interior designers
ardesarchitects@gmail.com
www.ardesarchitects.com
https://www.instagram.com/ardesarchitects
As per the dwg, the staircase wont work and the floor heights won't be sufficient . Ask your architect to get section done so the heights of each room are clear.
While going for split level planning you should be very careful about sectional heights including beam depths and slab thickness.
You cannot keep parking at zero level from road as the sump will have issues later. As per my understandings from your shared plan i have made a sectional dwg and the clear heights in small room is 5', dinning area 7' and parking 7'.
Giving living room 11' is not a problem but accordingly your number of steps should increase @ 6"-7" raiser height.
Regards,
Ar.Praveen.N
Ardes Architects and Interior designers
ardesarchitects@gmail.com
www.ardesarchitects.com
https://www.instagram.com/ardesarchitects
Re: Please review urgent-1100 sqfeet spacious house plan
Hi Praveen,ardesarchitects wrote: July 6th, 2020, 11:25 am Hi Sharma
As per the dwg, the staircase wont work and the floor heights won't be sufficient . Ask your architect to get section done so the heights of each room are clear.
While going for split level planning you should be very careful about sectional heights including beam depths and slab thickness.
You cannot keep parking at zero level from road as the sump will have issues later. As per my understandings from your shared plan i have made a sectional dwg and the clear heights in small room is 5', dinning area 7' and parking 7'.
Giving living room 11' is not a problem but accordingly your number of steps should increase @ 6"-7" raiser height.
Regards,
Ar.Praveen.N
Ardes Architects and Interior designers
ardesarchitects@gmail.com
www.ardesarchitects.com
https://www.instagram.com/ardesarchitects
It is a pleasure to see your interest and assistance.
I have gone through your website and liked the work you have done.
should i change my architect ? I think till now even he is not clear how the structure would come up. I can give him benefit of doubt since it is the starting phase and i have not communicated much with him till now. And a thorough design discussion is still pending.
I have discussed the sectional diagram you shared and as per him all of that he will do later. Though he has shared this diagram with me to give me some clarity.
- Attachments
-
- sectional drawing.png (9.6 KiB) Viewed 6807 times
-
- Posts: 375
- Joined: June 1st, 2018, 6:24 pm
Re: Please review urgent-1100 sqfeet spacious house plan
couple of points
1. Why at all you should have difference in floor level of 2 feet between living and dining ? Keep the floor level same so as to reduce chance of tripping and falling between living and dining room.
2. Keep patio and BR at same lavel else half your space is going in stairs.
Instead of keeping patio low yoi can raise the roof of room below to have more volume.
3. What is the need to keep parking at 7.5 feet ? If you are OK with ceiling at same level as rest of house . you won't have difference in levels at top .
Imagine if you buy a big SUV some day 7.5 feet will be a tight fit I have a safari and it's 7+ feet at topmost point
1. Why at all you should have difference in floor level of 2 feet between living and dining ? Keep the floor level same so as to reduce chance of tripping and falling between living and dining room.
2. Keep patio and BR at same lavel else half your space is going in stairs.
Instead of keeping patio low yoi can raise the roof of room below to have more volume.
3. What is the need to keep parking at 7.5 feet ? If you are OK with ceiling at same level as rest of house . you won't have difference in levels at top .
Imagine if you buy a big SUV some day 7.5 feet will be a tight fit I have a safari and it's 7+ feet at topmost point
Last edited by Visualizer on July 7th, 2020, 3:15 pm, edited 1 time in total.
-
- Posts: 375
- Joined: June 1st, 2018, 6:24 pm
Re: Please review urgent-1100 sqfeet spacious house plan
One more point lot of traditionalist architects suggest 11 feet pr 13 feet as ceiling level alluding some sort of grandness comes from it. However in my view unless overall the house is of palatial dimensions just increasing ceiling by 1 feet serves only contractor's purpose of making more money out of you.
You should consider high ceiling if and only if there is a genuine need like no intermediate floor in common area and a double height ceiling.
Standard Ceiling height of 10 feet is more than sufficient and anything above it in normal house is just wasting money on material and increasing AC bills if you ever install an AC.
You should consider high ceiling if and only if there is a genuine need like no intermediate floor in common area and a double height ceiling.
Standard Ceiling height of 10 feet is more than sufficient and anything above it in normal house is just wasting money on material and increasing AC bills if you ever install an AC.
Re: Please review urgent-1100 sqfeet spacious house plan
1. the plan is to have Living and Dining difference of 1-2 feet .. i am keeping the ground floor ceiling at 11 feet ... hence, living will have higher ceiling of 11 feet than Kitchen and Dining area which will have around 10 feet/9 feet depending on difference.Visualizer wrote: July 7th, 2020, 2:05 pm couple of points
1. Why at all you should have difference in floor level of 2 feet between living and dining ? Keep the floor level same so as to reduce chance of tripping and falling between living and dining room.
2. Keep patio and BR at same lavel else half your space is going in stairs.
Instead of keeping patio low yoi can raise the roof of room below to have more volume.
3. What is the need to keep parking at 7.5 feet ? If you are OK with ceiling at same level as rest of house . you won't have difference in levels at top .
Imagine if you buy a big SUV some day 7.5 feet will be a tight fit I have a safari and it's 7+ feet at topmost point
2. The small bedroom ceiling is Patio. Now the patio is having a total height of 7.5+8 = 15.5 from parking. (7.5 is the height between parking and small bedroom ) and (8 feet is the height of small bedroom ). so the Patio is at 15.5 feet and ground floor ceiling come at (11+2.5)= 13.5 feet from parking. so that is why difference of 2 feet. It looks quite complex actually to me as well.
3. The ground floor ceiling have different height for small bedroom. The small bedroom is at a split floor which starts from a height of around 5 feet from Living room. Living room is almost at a height of 2.5 feet from Parking. So overall height has a difference of 7.5 feet between small bedroom floor and parking. If i want to increase the overall parking height , then i have to increase the Living room height.
- ardesarchitects
- Posts: 1080
- Joined: June 20th, 2009, 2:12 pm
Re: Please review urgent-1100 sqfeet spacious house plan
rrsharma wrote: July 6th, 2020, 6:18 pmHi Praveen,ardesarchitects wrote: July 6th, 2020, 11:25 am Hi Sharma
As per the dwg, the staircase wont work and the floor heights won't be sufficient . Ask your architect to get section done so the heights of each room are clear.
While going for split level planning you should be very careful about sectional heights including beam depths and slab thickness.
You cannot keep parking at zero level from road as the sump will have issues later. As per my understandings from your shared plan i have made a sectional dwg and the clear heights in small room is 5', dinning area 7' and parking 7'.
Giving living room 11' is not a problem but accordingly your number of steps should increase @ 6"-7" raiser height.
Regards,
Ar.Praveen.N
Ardes Architects and Interior designers
ardesarchitects@gmail.com
www.ardesarchitects.com
https://www.instagram.com/ardesarchitects
It is a pleasure to see your interest and assistance.
I have gone through your website and liked the work you have done.
should i change my architect ? I think till now even he is not clear how the structure would come up. I can give him benefit of doubt since it is the starting phase and i have not communicated much with him till now. And a thorough design discussion is still pending.
I have discussed the sectional diagram you shared and as per him all of that he will do later. Though he has shared this diagram with me to give me some clarity.
Hi Sharma,
I am only giving my feedback on the design, changing the design or architect in not the recommendations i give.
One should be careful while planning split levels . You need to read the plan in parallel to the section. The section you shared is all good in terms of heights but to reach those heights you need sufficient space to fit enough number of stairs.
You cannot reach 10'ht in 14 steps, in case you increase the number of steps then your room size will vary. So i initially replied there are many basic mistakes .
I suggest you to get your design reviewed in total. Plan is not just about fitting rooms but increasing the space efficiency to min 80-85% with out dead spaces.
Front bedroom is 13'6" x 11' but bed is on to the corner with 50% space used only for door & stairs to patio . you would have spent atleast 3-4 times more money on site purchase per sft compared to construction cost. So every square feet of construction space is expensive and to be used best.
Fuctionality vs ambience vs costing should always be balanced.
Thankyou for liking my designs

Regards,
Ar.Praveen.N
Ardes Architects and Interior designers
ardesarchitects@gmail.com
www.ardesarchitects.com
https://www.instagram.com/ardesarchitects
-
- Posts: 375
- Joined: June 1st, 2018, 6:24 pm
Re: Please review urgent-1100 sqfeet spacious house plan
You have explained what part of plan which I had already understood through drawing.
However key question to be asked is why . It was my practical feedback that avoid difference in levels on same floor it's up to you to take it or leave it.
Also remember we all will grow old some day so design stairs easy on knees keeping that stage of life in mind.
Golden ratio for steps is r+ R = 18 and R+ 2r < 25 where r= run and R= rise.
I would suggest to keep rise and run for step as 6 inch rise and 12 inches as it is easiest.
So for each feet in floor height you need 2 feet length for stairs and with one turn 1 running feet of length.
If you consider one turn per floor for 10 feet floor height you need 20 steps or approx 10feet x 7 feet space for staircase in the plan ( 20 steps , width 3.5 feet each step 6 inch high and 12 inch wide one turn after 10 steps).
And for 11 feet floor height you will need 12 feet x 7 feet space.
Many people keep rise and Run as 7/11 as well but anything beyond makes it uncomfortable.
However key question to be asked is why . It was my practical feedback that avoid difference in levels on same floor it's up to you to take it or leave it.
Also remember we all will grow old some day so design stairs easy on knees keeping that stage of life in mind.
Golden ratio for steps is r+ R = 18 and R+ 2r < 25 where r= run and R= rise.
I would suggest to keep rise and run for step as 6 inch rise and 12 inches as it is easiest.
So for each feet in floor height you need 2 feet length for stairs and with one turn 1 running feet of length.
If you consider one turn per floor for 10 feet floor height you need 20 steps or approx 10feet x 7 feet space for staircase in the plan ( 20 steps , width 3.5 feet each step 6 inch high and 12 inch wide one turn after 10 steps).
And for 11 feet floor height you will need 12 feet x 7 feet space.
Many people keep rise and Run as 7/11 as well but anything beyond makes it uncomfortable.
rrsharma wrote: 1. the plan is to have Living and Dining difference of 1-2 feet .. i am keeping the ground floor ceiling at 11 feet ... hence, living will have higher ceiling of 11 feet than Kitchen and Dining area which will have around 10 feet/9 feet depending on difference.
2. The small bedroom ceiling is Patio. Now the patio is having a total height of 7.5+8 = 15.5 from parking. (7.5 is the height between parking and small bedroom ) and (8 feet is the height of small bedroom ). so the Patio is at 15.5 feet and ground floor ceiling come at (11+2.5)= 13.5 feet from parking. so that is why difference of 2 feet. It looks quite complex actually to me as well.
3. The ground floor ceiling have different height for small bedroom. The small bedroom is at a split floor which starts from a height of around 5 feet from Living room. Living room is almost at a height of 2.5 feet from Parking. So overall height has a difference of 7.5 feet between small bedroom floor and parking. If i want to increase the overall parking height , then i have to increase the Living room height.
Re: Please review urgent-1100 sqfeet spacious house plan
Thanks for your valuable feedback.
Actually even i want to avoid the staircase if possible. As per our architect, it is impossible given my requirement.
My major requirement are
1. to have spacious living cum dining space and one small bedroom on ground floor or if not then on half staircase landing for the small bedroom.
The reason for asking bedroom on either ground or somewhere on split floor is because we do not want to climb up and down from first floor again and again if we want to take rest on bed Or if someone comes on the door in the day time. So this small bedroom will be used most in the day time for small naps in afternoon or to get some rest.
Our architect said its impossible to fit one bedroom space on ground floor. and hence we have gone with split room . And that is why there is difference in floor height and ceiling heights as well.
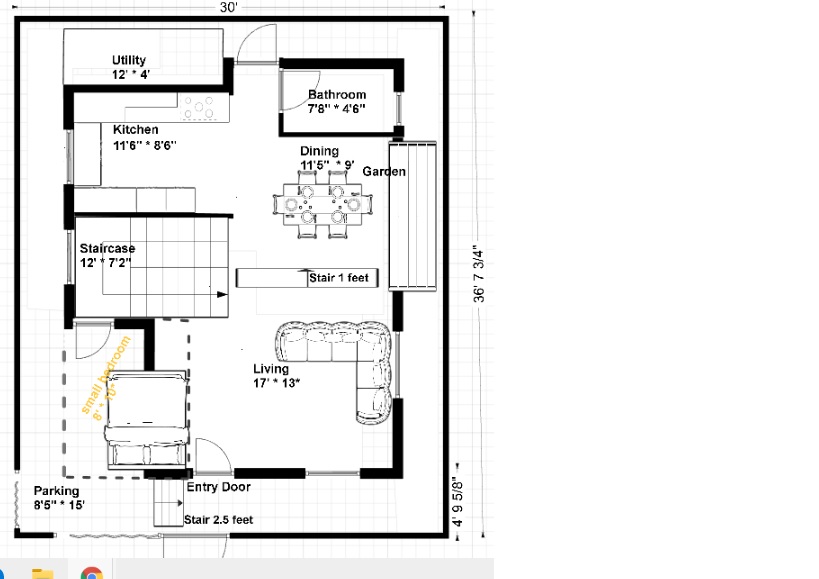
If you see the 2D design for ground floor attached earlier,you will notice that for the staircase a space of 12' * 7' feet is allocated already as you mentioned.
I still need to have full design discussion with my Architect as he want to show the 3D plan. I will share the updates and few 3D shots when i get them.
Actually even i want to avoid the staircase if possible. As per our architect, it is impossible given my requirement.
My major requirement are
1. to have spacious living cum dining space and one small bedroom on ground floor or if not then on half staircase landing for the small bedroom.
The reason for asking bedroom on either ground or somewhere on split floor is because we do not want to climb up and down from first floor again and again if we want to take rest on bed Or if someone comes on the door in the day time. So this small bedroom will be used most in the day time for small naps in afternoon or to get some rest.
Our architect said its impossible to fit one bedroom space on ground floor. and hence we have gone with split room . And that is why there is difference in floor height and ceiling heights as well.
If you see the 2D design for ground floor attached earlier,you will notice that for the staircase a space of 12' * 7' feet is allocated already as you mentioned.
I still need to have full design discussion with my Architect as he want to show the 3D plan. I will share the updates and few 3D shots when i get them.
Visualizer wrote: July 8th, 2020, 1:04 am You have explained what part of plan which I had already understood through drawing.
However key question to be asked is why . It was my practical feedback that avoid difference in levels on same floor it's up to you to take it or leave it.
Also remember we all will grow old some day so design stairs easy on knees keeping that stage of life in mind.
Golden ratio for steps is r+ R = 18 and R+ 2r < 25 where r= run and R= rise.
I would suggest to keep rise and run for step as 6 inch rise and 12 inches as it is easiest.
So for each feet in floor height you need 2 feet length for stairs and with one turn 1 running feet of length.
If you consider one turn per floor for 10 feet floor height you need 20 steps or approx 10feet x 7 feet space for staircase in the plan ( 20 steps , width 3.5 feet each step 6 inch high and 12 inch wide one turn after 10 steps).
And for 11 feet floor height you will need 12 feet x 7 feet space.
Many people keep rise and Run as 7/11 as well but anything beyond makes it uncomfortable.
rrsharma wrote: 1. the plan is to have Living and Dining difference of 1-2 feet .. i am keeping the ground floor ceiling at 11 feet ... hence, living will have higher ceiling of 11 feet than Kitchen and Dining area which will have around 10 feet/9 feet depending on difference.
2. The small bedroom ceiling is Patio. Now the patio is having a total height of 7.5+8 = 15.5 from parking. (7.5 is the height between parking and small bedroom ) and (8 feet is the height of small bedroom ). so the Patio is at 15.5 feet and ground floor ceiling come at (11+2.5)= 13.5 feet from parking. so that is why difference of 2 feet. It looks quite complex actually to me as well.
3. The ground floor ceiling have different height for small bedroom. The small bedroom is at a split floor which starts from a height of around 5 feet from Living room. Living room is almost at a height of 2.5 feet from Parking. So overall height has a difference of 7.5 feet between small bedroom floor and parking. If i want to increase the overall parking height , then i have to increase the Living room height.
- Attachments
-
- 2D ground floor view.jpg (78.9 KiB) Viewed 6735 times
Re: Please review urgent-1100 sqfeet spacious house plan
I still need to have full design discussion with my Architect as he want to show the 3D plan. I will share the updates and few 3D shots when i get them.