Page 7 of 23
Re: House Construction - Experience
Posted: October 17th, 2016, 10:16 pm
by ramki067
swamy_blr wrote:Hi Ramki,
I am purchasing M Sand from one Factory manufacturer near Devanahalli, the quality is good and getting the rate @ 750 per ton and using only for Concrete related construction. M Sand is already proven one for construction purposes, the Structural engineers is recommending to use in all types of construction. There is no harm in long term as well,
rgds
Swamy
Hi swamy,
Thanks for this great info to me.
Could you PM me the factory address and contact details from where u purchased m-sand?
Thanks,
Ramki
Re: House Construction - Experience
Posted: October 27th, 2016, 1:44 pm
by swamy_blr
Hi Friends,
Some updates on our Construction post the Ground Floor Slab. Next Floor is Duplex which we are going to Stay and needs to monitor thoroughly.
Post Curing of 20 days, we have started the Columns construction till 7 Feet for First Floor, all Columns comes good without any major air holes, but saw smaller one holes on some columns and it was plastered with cement after opening the Columns box.
Wall construction for First Floor is in progress with Red Clay Wire Bricks.
2 Loads (10000 Nos) of Red Clay bricks purchased @ 7 per Brick
River Sand from Harihara @ 57000 for 10 Wheeler Truck (700 CFT approximately)
Cement : Birla Super 53 Grade @ 390 per bag
rgds
Swamy
Re: House Construction - Experience
Posted: October 27th, 2016, 4:32 pm
by kumarraja
Swamy,
Can you share me your River sand supplier details?
Thanks,
Kumar
swamy_blr wrote:Hi Friends,
Some updates on our Construction post the Ground Floor Slab. Next Floor is Duplex which we are going to Stay and needs to monitor thoroughly.
Post Curing of 20 days, we have started the Columns construction till 7 Feet for First Floor, all Columns comes good without any major air holes, but saw smaller one holes on some columns and it was plastered with cement after opening the Columns box.
Wall construction for First Floor is in progress with Red Clay Wire Bricks.
2 Loads (10000 Nos) of Red Clay bricks purchased @ 7 per Brick
River Sand from Harihara @ 57000 for 10 Wheeler Truck (700 CFT approximately)
Cement : Birla Super 53 Grade @ 390 per bag
rgds
Swamy
Re: House Construction - Experience
Posted: November 10th, 2016, 3:56 pm
by rithick
girishshk wrote:Swamy, go with Texmo. I got it for 90K including installations, pipe and wires etc.
I Think 3/4HP 30-40 stage with 3 Phase is more than enough for 950 feet.
PM if u want more details, i will get the complete details from my bill.
Hi girish, can you please send me contact details of the vendor to my mail address: ritesh.gp(at)gmail.com
Re: House Construction - Experience
Posted: November 22nd, 2016, 12:49 pm
by swamy_blr
Hi Friends,
There is not much progress on my House Construction in last 2 weeks, I was also busy with some work and centering guys were on Holiday.
Work in progress for First Floor Slab : Centering is done, Barbending activity in progress, Internal Staircase centering is also done.
There was mistake from Wall construction guys and they haven't considered the Roof slab height (5" Inch) and due to this the Roof Height was coming to 9'-7" Feet instead of 10" Feet (Inner to Inner), Centering was done and they also didn't catch it. While putting staircase they realized the mistake as Count of Steps was coming less. Blasted them left and right and was surprise there stupidity in the calculation.
They have to remove the centering and increased the Wall height and again centering was done. 2 - 3 days wasted due to this.
Purchased Birla Super 53 Grade (125 Bags) @ 370 Per bag
JSW Neo Steel @ 43000 per ton
Planning to put Roof Slab concrete on Friday or Sunday (Manual Mixing only)
rgds
Swamy
Re: House Construction - Experience
Posted: December 1st, 2016, 12:12 pm
by swamy_blr
Hi Friends,
Further updates on our House Construction -
on Sunday(27th Nov'16) we have put the FF Roof Slab - Manual Mixing method. All went well and now the curing is in Progress for next 15-20 Days.
Here is Actual consumption of the Materials
Birla Super 53 grade = Total 150 Bags @ 370 Per bag
JSW Neo Steel around 2 Tons @ 43000 per ton
M Sand used for Concrete
During this Gap of 15 days time Curing time of FF, We will complete all the pending Internal walls and Windows Part for Ground Floor.
Post 21 days, we will start the Wall construction activity for Second Floor.
rgds
Swamy
Re: House Construction - Experience
Posted: December 3rd, 2016, 9:24 am
by KRISHPZW
Hi Swamy,
I also started construction of my 30*40 site & wanted to but Birla super Cement.
You got cement @ best price.....Could you please provide cement dealer address or phone number so that I can purchase cement from that shop..
Thanks & regards,
Krishna
Re: House Construction - Experience
Posted: December 5th, 2016, 11:47 am
by swamy_blr
Hi Krishna,
I am purchasing the Birla Super 53 Grade Cement from Sri Venkateshwara Enterprises near Hebbal (North Bangalore), You can contact their sales representative Shashi @ 9071300941
With Bill @ 370 per bag if you purchase more than 50 bags
@380 per bag if you purchase below 50 Bags.
Cement Price has come down from 15th Nov 2016 onwards.
rgds
Swamy
Re: House Construction - Experience
Posted: December 14th, 2016, 12:33 pm
by goutam_d
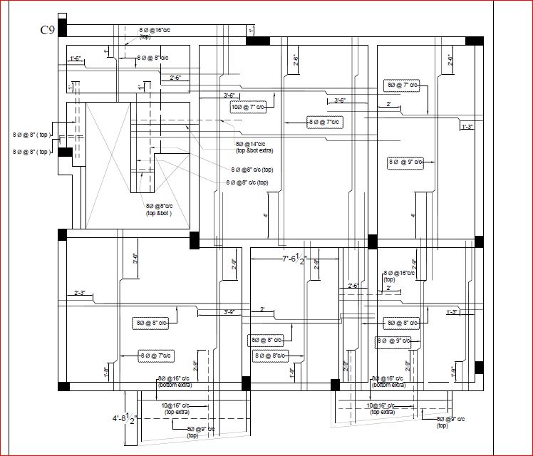
Hi Swamy,
Can you please share the Rebar (Steel design work) work for Roof slab design ( Before putting concrete)? I am not able to understand my structural drawing for Roof slab work.
It will be very helpful for me.
Regards,
Gout
Re: House Construction - Experience
Posted: December 14th, 2016, 3:56 pm
by swamy_blr
Hi Goutham,
Here is my Roof Slab design details, We can't understand it easily unless you know structural design
But keep asking the doubts with your Engineer and he will clarify you some understanding.

- Roof Slab design
- Roof Slab Details.JPG (87.93 KiB) Viewed 9797 times