Please review urgent-1100 sqfeet spacious house plan
Please review urgent-1100 sqfeet spacious house plan
I have a 30*37 feet (1100 sqfeet approx) south west corner site in Bangalore near varthur on which i am planning to build a beautiful small yet spacious dream home. I have discussed my requirement with one of architect who is from my native Rajasthan.
My requirement : 1. Need good space for kitchen . hall, and dinning . All should be on same floor.
2. Need parking for one car
3. One bedroom either on ground floor if not possible then create split floor . I do not want to climb
too many stair.
4. Two bedroom on first floor.
The yellow labeled bedroom is on mid staircase landing.
This is plan shared by him for minimal charges which looks quite complex. Looking forward for any advice. will it be fine with BBMP? I am attaching ground and first floor plan.
Thanks
My requirement : 1. Need good space for kitchen . hall, and dinning . All should be on same floor.
2. Need parking for one car
3. One bedroom either on ground floor if not possible then create split floor . I do not want to climb
too many stair.
4. Two bedroom on first floor.
The yellow labeled bedroom is on mid staircase landing.
This is plan shared by him for minimal charges which looks quite complex. Looking forward for any advice. will it be fine with BBMP? I am attaching ground and first floor plan.
Thanks
Last edited by rrsharma on July 5th, 2020, 6:02 pm, edited 5 times in total.
Re: 1100 sqfeet spacious house plan
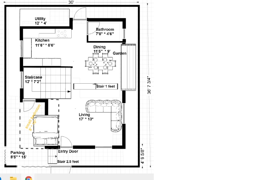
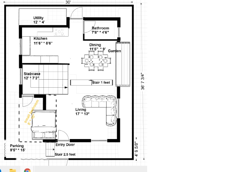
Please find the top view for ground floor . Please suggest if the plan looks fine. Hope this helps.
Last edited by rrsharma on July 3rd, 2020, 4:10 am, edited 1 time in total.
Re: 1100 sqfeet spacious house plan
I think the plan is confusing and not explained well. I have asked to give a simple 2d plan for the same.
Last edited by rrsharma on July 1st, 2020, 11:33 pm, edited 1 time in total.
Re: 1100 sqfeet spacious house plan
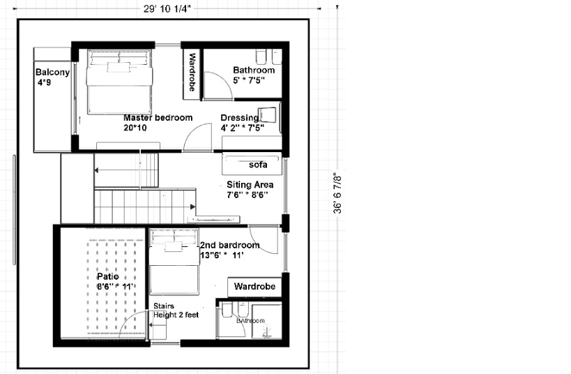
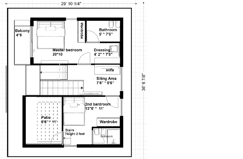
Ground floor simple plan shared. The yellow color for bedroom means .. this bedroom is at mid level and entry is at staircase half landing.
The setback is 3 feet or more on all the side. Front setback is more than 4 feet.
Please review and confirm if everything looks good then i will confirm this.
The setback is 3 feet or more on all the side. Front setback is more than 4 feet.
Please review and confirm if everything looks good then i will confirm this.
Last edited by rrsharma on July 3rd, 2020, 4:10 am, edited 1 time in total.
Re: Please review urgent-1100 sqfeet spacious house plan
please guys , this is the forum i expect the most to help me out. Looks like no one has any input on it.
Re: Please review urgent-1100 sqfeet spacious house plan
updated the design plans ,since please provide inputs.
Last edited by rrsharma on July 4th, 2020, 5:54 pm, edited 1 time in total.
Re: Please review urgent-1100 sqfeet spacious house plan
..
Last edited by rrsharma on July 4th, 2020, 5:53 pm, edited 1 time in total.
- ardesarchitects
- Posts: 1080
- Joined: June 20th, 2009, 2:12 pm
Re: Please review urgent-1100 sqfeet spacious house plan
Hi, Sharma
You need to wait till others find time to respond, all members here are sharing knowledge out of their own intrest.
The same way you should share the information that you learnt during this process.
With respect to your plan
1.I suggest you look for an alternate plan as there are many basic mistakes.
2.Your plan looks very confusing, I couldnt understand how the small bedroom happening at the midlanding with out reaching the minimum height of 7'.
3.Window positions are not shown any where.
4. The efficiency in the spaces are not great, wardrobe positions are not show in any room, unless you know the window postions you cannot plan for the furniture.
5. Kitchen counter space is very small compared to the room size.
Regards,
Ar.Praveen.N
Ardes Architects and Interior designers
ardesarchitects@gmail.com
www.ardesarchitects.com
https://www.instagram.com/ardesarchitects
You need to wait till others find time to respond, all members here are sharing knowledge out of their own intrest.
The same way you should share the information that you learnt during this process.
With respect to your plan
1.I suggest you look for an alternate plan as there are many basic mistakes.
2.Your plan looks very confusing, I couldnt understand how the small bedroom happening at the midlanding with out reaching the minimum height of 7'.
3.Window positions are not shown any where.
4. The efficiency in the spaces are not great, wardrobe positions are not show in any room, unless you know the window postions you cannot plan for the furniture.
5. Kitchen counter space is very small compared to the room size.
Regards,
Ar.Praveen.N
Ardes Architects and Interior designers
ardesarchitects@gmail.com
www.ardesarchitects.com
https://www.instagram.com/ardesarchitects
Re: Please review urgent-1100 sqfeet spacious house plan
Hi Praveen,
a.) Total height of the ground floor is 11 feet.
The small bedroom starts at 5 feet from ground and height is 8 feet. so it goes beyond the height of ground floor.
so there is a difference of 2 feet in the ceiling of small bedroom and rest of the ceiling.
Because of this, to reach the patio , one has to climb the stairs of 2 feet from 2nd bedroom to patio as shown in the design.
b.) Windows are added now.
c.) Kitchen size is 11'6" * 8'6" . How should i manage the kitchen counter top?
a.) Total height of the ground floor is 11 feet.
The small bedroom starts at 5 feet from ground and height is 8 feet. so it goes beyond the height of ground floor.
so there is a difference of 2 feet in the ceiling of small bedroom and rest of the ceiling.
Because of this, to reach the patio , one has to climb the stairs of 2 feet from 2nd bedroom to patio as shown in the design.
b.) Windows are added now.
c.) Kitchen size is 11'6" * 8'6" . How should i manage the kitchen counter top?
- Attachments
-
- 2D first floor view.jpg (68.72 KiB) Viewed 7779 times
-
- 2D ground floor view.jpg (78.9 KiB) Viewed 7779 times
Re: Please review urgent-1100 sqfeet spacious house plan
Hi Praveen,ardesarchitects wrote: July 3rd, 2020, 3:13 pm Hi, Sharma
You need to wait till others find time to respond, all members here are sharing knowledge out of their own intrest.
The same way you should share the information that you learnt during this process.
With respect to your plan
1.I suggest you look for an alternate plan as there are many basic mistakes.
2.Your plan looks very confusing, I couldnt understand how the small bedroom happening at the midlanding with out reaching the minimum height of 7'.
3.Window positions are not shown any where.
4. The efficiency in the spaces are not great, wardrobe positions are not show in any room, unless you know the window postions you cannot plan for the furniture.
5. Kitchen counter space is very small compared to the room size.
Regards,
Ar.Praveen.N
Ardes Architects and Interior designers
ardesarchitects@gmail.com
www.ardesarchitects.com
https://www.instagram.com/ardesarchitects
a.) Total height of the ground floor is 11 feet.
The small bedroom starts at 5 feet from ground and height is 8 feet. so it goes beyond the height of ground floor.
so there is a difference of 2 feet in the ceiling of small bedroom and rest of the ceiling.
Because of this, to reach the patio , one has to climb the stairs of 2 feet from 2nd bedroom to patio as shown in the design.
b.) Windows are added now.
c.) Kitchen size is 11'6" * 8'6" . How should i manage the kitchen counter top?
- Attachments
-
- 2D ground floor view.jpg (78.9 KiB) Viewed 7779 times
-
- 2D first floor view.jpg (68.72 KiB) Viewed 7779 times