Page 2 of 7
Re: ಕನಸಿನ ಮನೆ ಪ್ರಾರಂಭೋತ್ಸವ (Dream house construction started )
Posted: July 7th, 2022, 10:18 pm
by manomur
Hi everyone,
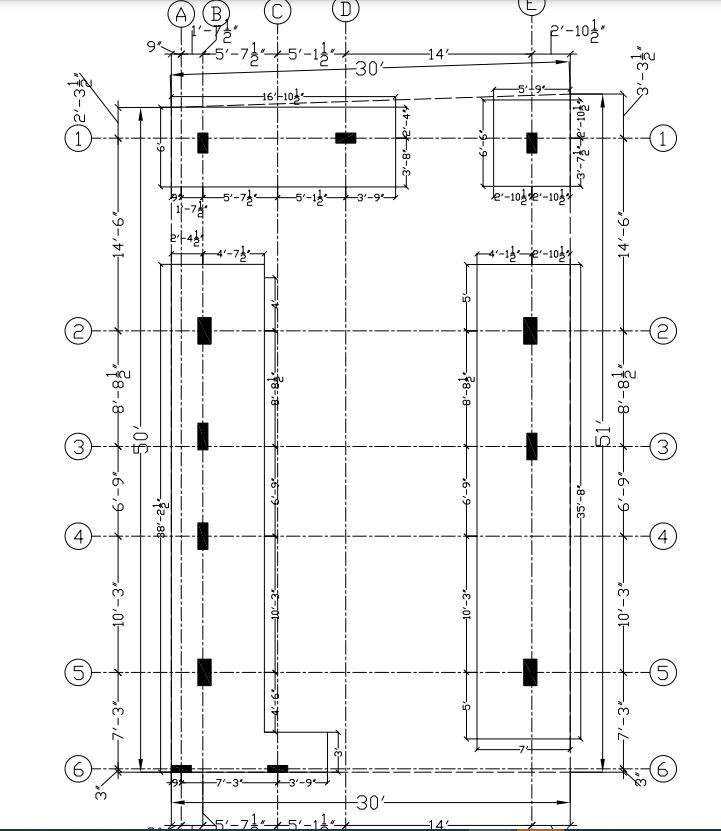
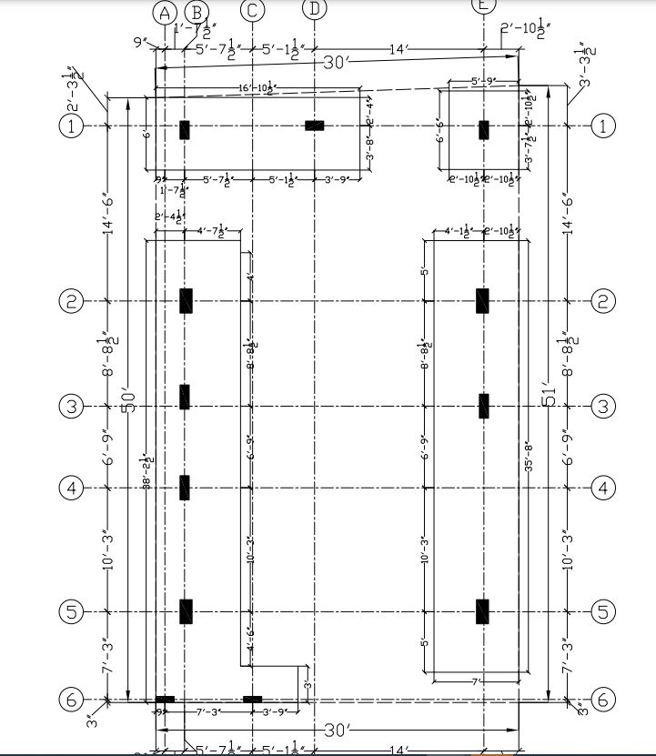
There is no much to update, shed construction is done except placing sheets on top, mestri postponed it saying we can do it on a day before the materials arrive. Was waiting for structure drawings to come, today evening my architect has sent it. To meet my requirements Architect and Structural engineer has done splendid job ensuring no column in the center. Sometimes it looks very scary with no columns in the center and how the load is distributed with 24 ft span but Structural engineer has his own calculation. Regarding cement I want to go with Ultratech PPC and same was communicated to them but Structural engineer want to know the composition of the cement so asked dealer to provide the test certificate of the same.

- structure.JPG (88.49 KiB) Viewed 13018 times
Re: ಕನಸಿನ ಮನೆ ಪ್ರಾರಂಭೋತ್ಸವ (Dream house construction started )
Posted: July 22nd, 2022, 11:15 pm
by manomur
Its been long time since my last update, within this 2 two weeks lots of development happened, currently we are planning for footing on this coming Sunday so by tomorrow EOD the steel work for footing will be completed.
Excavation took 2 days for us, we hired JCB on hourly basis as I felt it will be economical analogous to sqft basis.
For dressing we hired mud worker for 3k but on day of the excavation he was reluctant to work for the same so demanded 1k more including anti termite control. After JCB work there was no much work left the mud worker team( son, father, mother) didn't do any proper work, on 1st day there was no work for them all three were simply chit chatting and on next day lady disappeared only father and son were there and they both disappeared too and came back at 4 pm once jcb work was completed , did some left over mud lifting work and sprayed the anti termite solution which I have given to them. They were again demanding 1k more for which we didn't agreed. On the next day bar bending work started they begun with checking measurements of excavation where they found some discrepancies, at some places excavation at bottom was 1/2 to 1 feet lesser to the given measurements. Again I need to find mud worker to do the correct it but I decided not to go with earlier people, so found another guy where he literally did splendid job for which I paid him more than we agreed for.
As in my plan there is no center column the structure engineer has give heavy steels of 25 mm bars to manage the load. So till now 5.2 ton of steels have been used. Cement Birla super opc 53 grade, currently we have a stock of 70 bags out of 100 bags of 1st order, 30 bags were spent for PCC. For fotting concrete mestri asked me to get 200 bags more, 2 loads of 20 mm gravel and 2 loads of m sand.
Total expenditure till date is around 7.5 lakhs.
Re: ಕನಸಿನ ಮನೆ ಪ್ರಾರಂಭೋತ್ಸವ (Dream house construction started )
Posted: July 31st, 2022, 4:34 pm
by Spatika
manomur wrote: July 4th, 2022, 7:25 am
I was ready to close the deal for 32k but he was very adamant at 34k. He was telling so many stories and hardship involved in red bricks construction, he was emphasizing much on one point that finding and retaining Labour having skills of red bricks construction in current market is very difficult it seems. Finally he came down to 33k but quoting extra 40k for RCC sump, 3000 Rs/Chain link step and elevation based on design. We still felt the price is too exorbitant especially with chain link steps. In my case at least we are getting 40 steps , so based on his price it would be around 1 lack 20 thousand extra for steps. I knew from the discussion of Rashmi that price of one chain link step is going to be around 1500 Rs, so based on that calculation I decide to finalize it for 35K including everything.
Hello Manomur, very nice to see the progress. I am also in same process of starting the construction & discussing with many masons for labour contracting. Does 35K includes Compound wall, Muddy on terrace,...?. I got an offer for 32K. Compound wall (Rs.300 per running feet), Sump (Rs 7/ltr), Muddy (Rs.60/- per sqft) as extra.
Any idea is this quote too high?
Thank you
Santhosh
Re: ಕನಸಿನ ಮನೆ ಪ್ರಾರಂಭೋತ್ಸವ (Dream house construction started )
Posted: August 9th, 2022, 7:31 am
by manomur
Spatika wrote: July 31st, 2022, 4:34 pm
manomur wrote: July 4th, 2022, 7:25 am
I was ready to close the deal for 32k but he was very adamant at 34k. He was telling so many stories and hardship involved in red bricks construction, he was emphasizing much on one point that finding and retaining Labour having skills of red bricks construction in current market is very difficult it seems. Finally he came down to 33k but quoting extra 40k for RCC sump, 3000 Rs/Chain link step and elevation based on design. We still felt the price is too exorbitant especially with chain link steps. In my case at least we are getting 40 steps , so based on his price it would be around 1 lack 20 thousand extra for steps. I knew from the discussion of Rashmi that price of one chain link step is going to be around 1500 Rs, so based on that calculation I decide to finalize it for 35K including everything.
Hello Manomur, very nice to see the progress. I am also in same process of starting the construction & discussing with many masons for labour contracting. Does 35K includes Compound wall, Muddy on terrace,...?. I got an offer for 32K. Compound wall (Rs.300 per running feet), Sump (Rs 7/ltr), Muddy (Rs.60/- per sqft) as extra.
Any idea is this quote too high?
Thank you
Santhosh
Hi Spatika, I am not sure about Muddy work on terrace as we going for Terrace gardening on the third floor so as per our agreement any work related to waterproofing and terrace gardening is extra. Apart from that all other civil works like compound wall, 25k ltr sump and chain link staircase is included in my 35k.
Re: ಕನಸಿನ ಮನೆ ಪ್ರಾರಂಭೋತ್ಸವ (Dream house construction started )
Posted: August 9th, 2022, 8:23 am
by manomur
Update:
Rain..Rain..Rain its not stopping here and weather is not so supportive to continue work, water is completely logged into footings and work is stopped since from 2 weeks i.e. from June 24th. Apart from weather the main reason for delay is I wanted to get the concrete strengthening test done as I was bit skeptical about the concrete work carried out on the footing day. As mine is raft foundation there were two gangs working on that day, I was monitoring north raft which is about 36 ft in length and 7 ft in width and other side mestri was taking care of south raft which is of almost 40 ft in length and 7 ft in width.
We used M20 grade of concrete where the ratio is 1(Cement):1.5(Sand):3(Aggregates,) at north raft as I was monitoring the gang I ensured there is proper ratio is followed and I didn't observed much water in the concrete.
But with other raft I have observed too much water in the concrete and when I questioned the same to mestri he said its common and more water content will improve workability.
After completing these two rafts (north & south) there was another raft at back (west) which is of length 16 ft and 7 ft in width. For this raft two gang joined hands so they were pouring concrete form either side and here also I observed too much water content in the middle (attached photo).
For the same reason I started researching about it and came to know that concrete segregation and bleeding has happened at my site. I was totally disappointed as more water content in concrete will ultimately reduce the
strength of concrete and I did spoke about it with my engineer and my friend who are in construction field they said yes its happens on site but by using vibrator the issue will be fixed.
My engineer is giving 100% guarantee of strength achieving and he also recommended to do concrete strength test for my mental peace. For this test I spoke to cement dealer and he gave an concerned cement engineer where he agreed to do test (rebound hammer test) but for that the site should be clear as it is completely water logged, so awaiting the rain to stop.
As its too long I thought of pumping out the water from footings by using 0.5hp motor, I am not sure these kinds of pumps can be used for muddy water, any suggestions here for pumping out water ?
Re: ಕನಸಿನ ಮನೆ ಪ್ರಾರಂಭೋತ್ಸವ (Dream house construction started )
Posted: August 9th, 2022, 8:24 am
by manomur
Water logging ,,,
Re: ಕನಸಿನ ಮನೆ ಪ್ರಾರಂಭೋತ್ಸವ (Dream house construction started )
Posted: August 10th, 2022, 6:08 pm
by vijayk76
Rain has been spoilsport. Hope in next few days we should be done with heavy showers. Thanks for posting and updating details on your construction.
Re: ಕನಸಿನ ಮನೆ ಪ್ರಾರಂಭೋತ್ಸವ (Dream house construction started )
Posted: August 12th, 2022, 10:56 am
by Spatika
Thank you manomur for the info. With current market price, 35K all inclusive really good deal.
Hope, weather will be better in next weeks.
Re: ಕನಸಿನ ಮನೆ ಪ್ರಾರಂಭೋತ್ಸವ (Dream house construction started )
Posted: August 20th, 2022, 1:02 pm
by manomur
Last week bought a 0.5 hp kirloskar motor which costed around 3.5k including all accessories. I did fitting on my own and pumped out muddy water from foundation site. Yesterday on my request Ultratech team visited my site and did Rebound hammer test, the age of concrete was 27 days and concrete used was M20 grade (1 : 1.5 : 3). As per standards on 28 days we should achieve concrete strength of 20 Mpa and results were quite convincing except in one reading in sump area. Even Utratech engineers were suggesting to use the ratio of 1 : 2.5 : 3.5 for better strength but when I discussed the same with my engineer he strictly said no and to adhere to ISI guidelines .Parallelly yesterday starters were put to columns , so probably on Monday shuttering work will be completed and may be on Tuesday or Wednesday column raising and sump concrete will be completed.
Re: ಕನಸಿನ ಮನೆ ಪ್ರಾರಂಭೋತ್ಸವ (Dream house construction started )
Posted: September 7th, 2022, 5:51 pm
by manomur
Any idea about Swamy Chamber Bricks based out in Hoskete. I over heard that the price is around Rs 16 per brick and that too booking has to be done at least a one month before the expected date of delivery.
In my layout few owners are using SVB, SWB bricks based out in Attibele, which are coming around Rs 12 per brick.
Anyone here have used the above mentioned bricks, if so kindly share your opinion on the quality, shape and strength part.