First floor construction

Post Reply
srinivasaprabhu
Posts: 19
Joined: December 17th, 2015, 3:22 pm

First floor construction

Post by srinivasaprabhu »

Hi All,
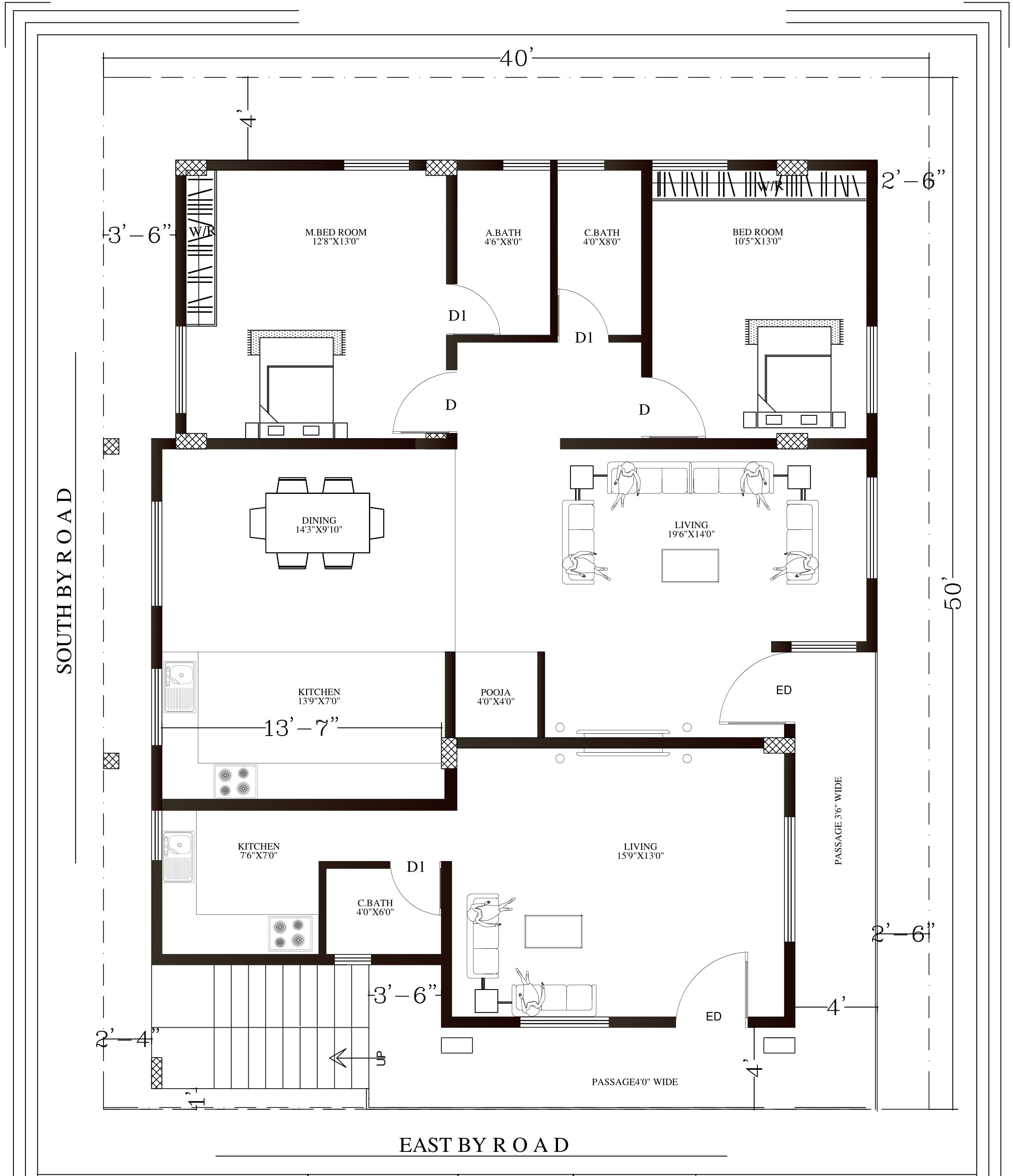
I have just started the first floor construction.(Ground floor is already existing and i am staying in it ). attached is the floor plan i got from my engineer. Yes we are constructing 1HK and 2 BHK.1HK will be of east facing and 2 BHK will be of north facing. Attached is the plan of ground floor and first floor .
The ground floor slab needs to be extended for better utilization of site . The existing ground floor has 11 pillers and need additional 5 pillars. So its is extended around 310 sqft . We need to add 5 extra pillars as well .
Also the existing stair case needs to be demolition and new stair case to be constructed in south east side .
For this the mason is charging me 100000. IS this okay ?
The mason is claiming that 30000/100 sqft is the charges and he is saying he is not
taking anything extra to dig the holes for the new 5 extra pillars and demolition of existing stair case .
Also the debris clearing charges are extra . It may up to 10 tractor loads.
Also need some help for getting the electrical and plumbing work .
kindly share if anyone has any contact near Thanisandra .

Note : in the first floor plan, south west offset is 2'4"as against 3'6" in the plan .plan needs to be corrected.

Thanks,
Srinivasa Prabhu
Attachments
ground floor plan
ground floor plan
first floor plan .
first floor plan .
srinivasaprabhu
Posts: 19
Joined: December 17th, 2015, 3:22 pm

Re: First floor construction

Post by srinivasaprabhu »

No replys so far.any leads.
Post Reply

Return to “Civil Construction”