Please advice on home plan

Post Reply
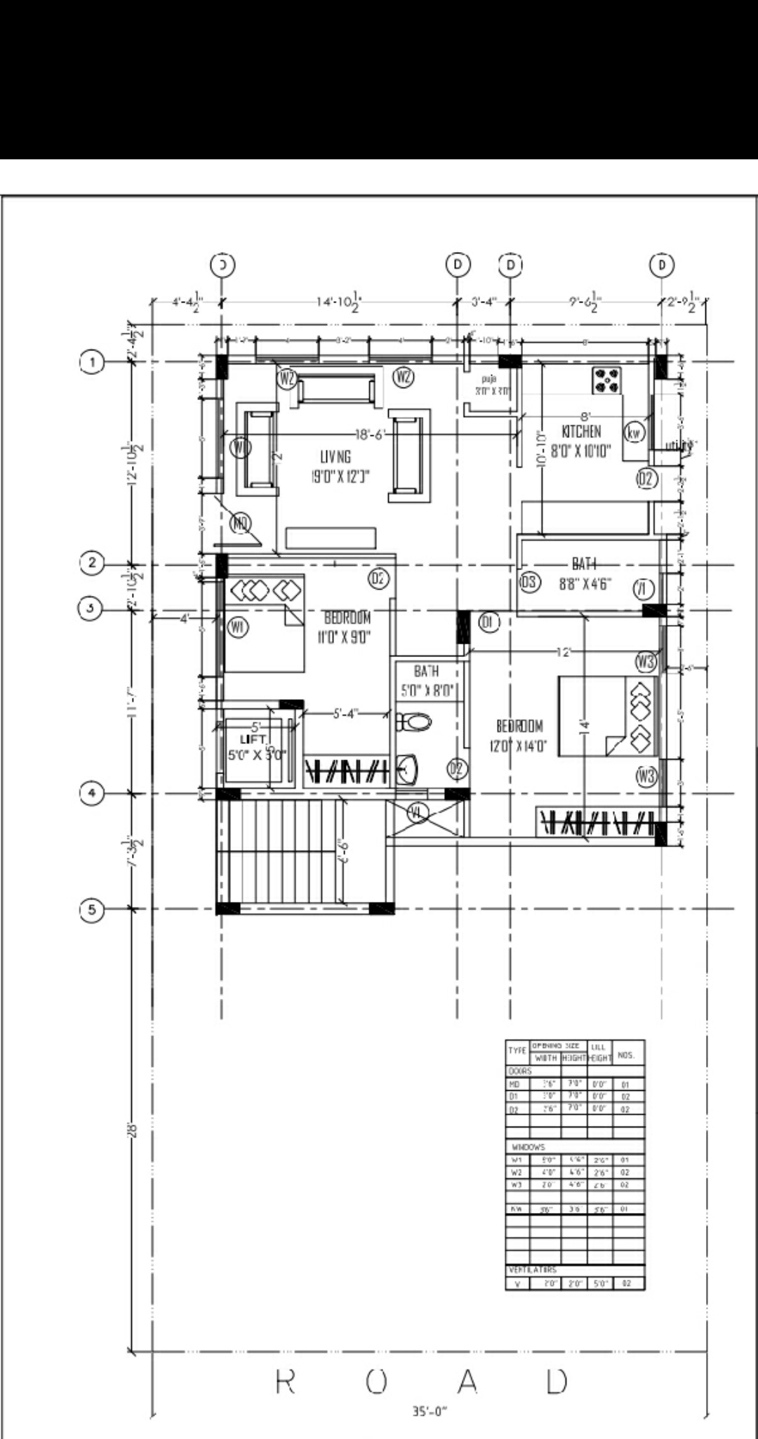
ramki067
Posts: 246
Joined: October 7th, 2009, 10:07 am

Please advice on home plan

Post by ramki067 »

Hi,
I have a 35x65 feet west facing plot on which i have constructed 2 bhk house on 35x35 area(back of plot) as in attachment.
We want to build a duplex on this and also want to construct on the remaining area(30x35) for rent. The road adjoining the plot is somewhat commercial.
Please provide options on what all i can construct.

Thanks very much.

Regards,
Ramki
Attachments
IMG_20200615_221229.jpg
trichyn
Posts: 3
Joined: January 7th, 2014, 10:03 am

Home plan 20*30 east facing

Post by trichyn »

I am planning to construct duplex on 20*30 east facing. Request to share the plan. What will be the estimate for 1 BHK in gf, 2br in gf and 1br in SF. Roughly the area will be around 1500sft.
Thanks
Nagender
Post Reply

Return to “Civil Construction”